1 / 17

Museum of Modern Art

Warsaw, Poland, 2006-2007

Today we are in the position to question the way cultural institutions work and respond to the changing patterns of our city life. The performance of our cultural institutions is changing and the way they function is open to inquiry. Fundamental reconsiderations are being contemplated by the new public programs which are now more widely open to new architectural expression. The self-assured certainty of the museum as an elitist institution is giving way to a new openness in the way public and art interact.

The site for the new Museum of Art in Warsaw is near the foot of the Palace of Culture, at the crucial intersection of the city grids. The overlapping geometries of the city and the character of the site are engaged in the architecture of the Museum. The Museum is part of its particular urban situation in its effort to form a meaningful public space rather than become an architectural object.

The intention of the design is to create a new kind of cultural institution which is widely open to imaginative reinterpretation and use. It is no longer a strictly uni-functional museum closed most hours of the year, but a vibrant organisation which can stay open for public use even when the museum facilities are closed.

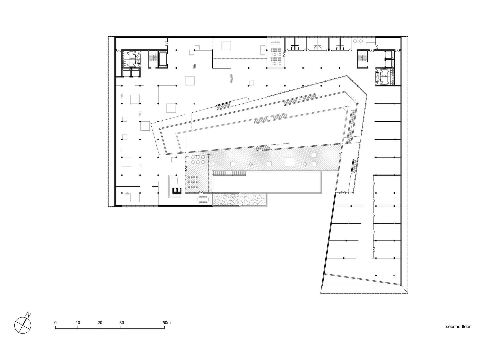
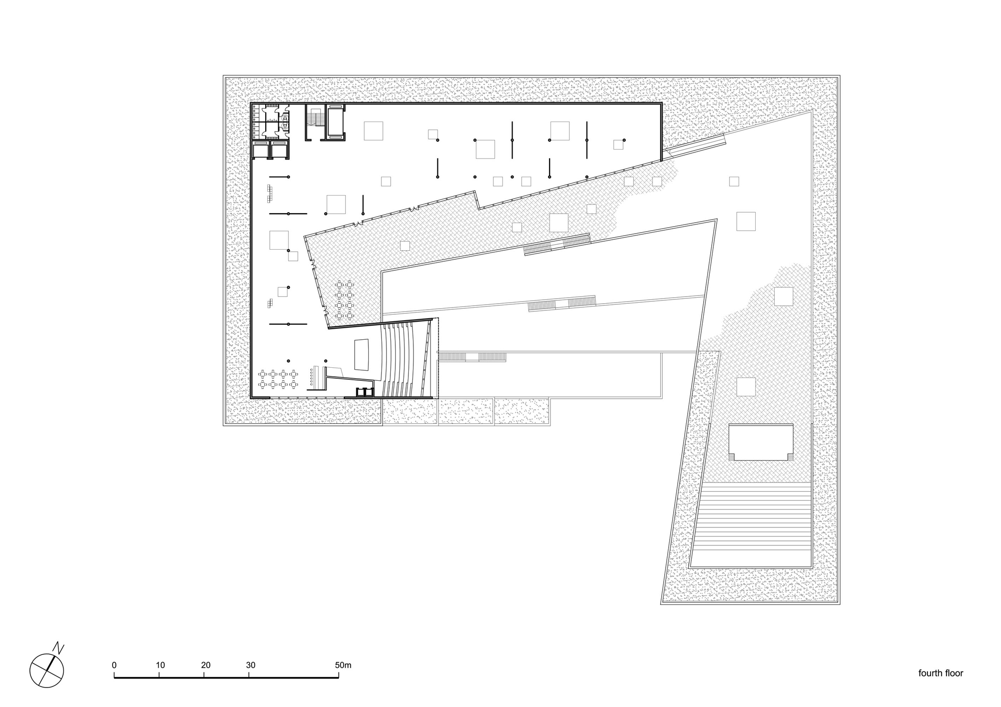
The public is allowed and even encouraged to use the exterior of the building. Stepped roof terraces act as an extension of the piazza below and display a wide variety of sculptural works, as well as coffee shops and restaurants.

These open terraces allow the museum's sculptural collection to be exhibited in an outdoor situation visible to passers by. Similarly, the roof galleries serve the visitors as observation platforms from whence they can view the activity of the piazza below in the same way that passers by in Rockefeller Center in New York can enjoy watching people skating on its rink.

The stepped roof terraces give a pyramidal section, allowing diffuse natural light to enter the building. This was a primary concern of the design. Due to the increasing diversity of contemporary art, a wide variety of lighting conditions and exhibition spaces are provided. Different qualities of light and space are offered to stimulate and engage the museum visitor. At night this process is reversed, with light escaping from the interior via the glazed Roof Terraces, making the building appear to glow, creating an inviting urban space.

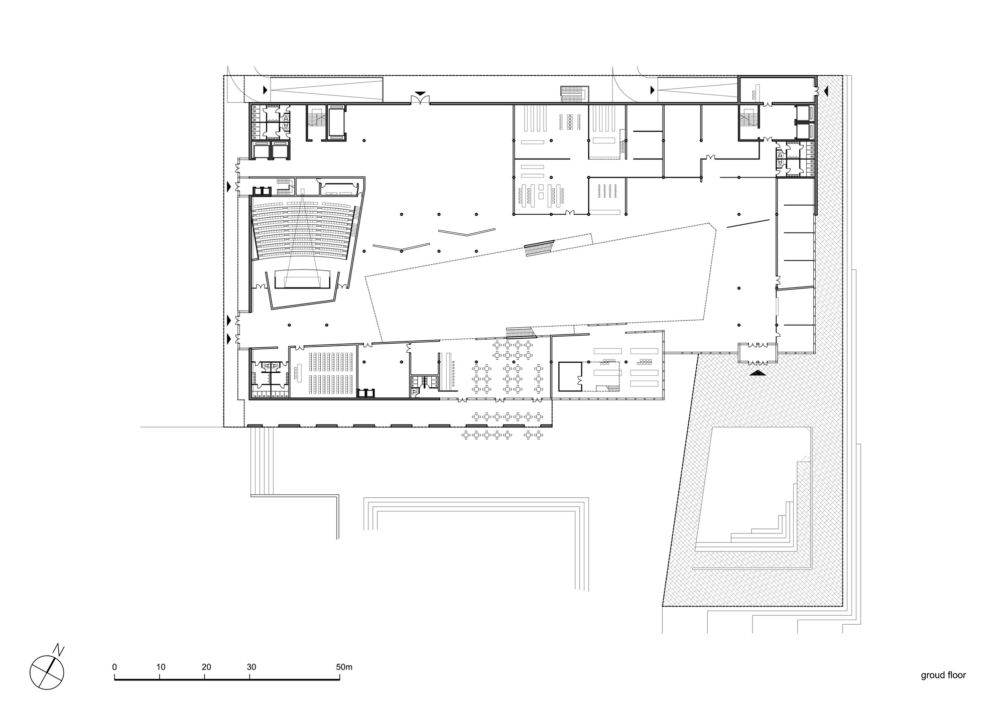
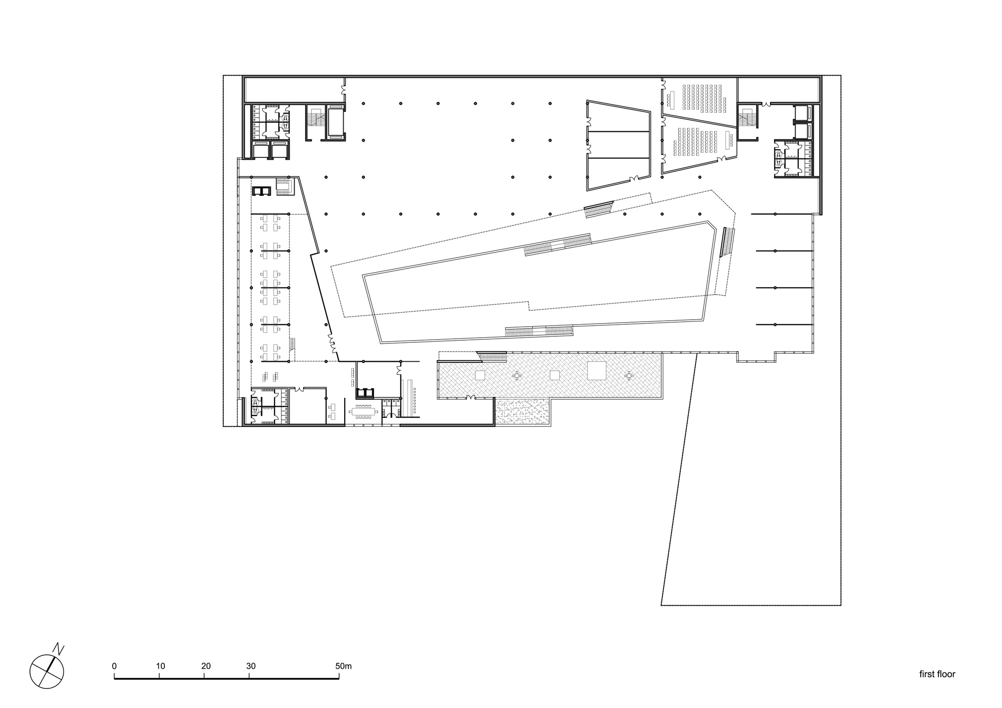
In the new museum, the art exhibition section and business-commercial facilities are separated and clearly expressed. The museum is organised around a central atrium, whilst the business-commercial part takes the form of a forcefully projecting arm over the museum's main entrance.

One enters into the large open space of the atrium which acts as the hub of the museum. Escalators and stairs take ticketed visitors to the upper galleries, cafes and restaurants. Each level has free access to the outside roof terraces, connected by both stairs and lifts.

The museum building is a reinforced concrete structure. This exterior is made from pigmented concrete in combination with stainless steel panels polished to a high gloss. Glass curtain walls are sandblasted to provide diffuse light into the interior. Careful attention has been given to assure good acoustic conditions by the use of absorbent materials on the underside of the interior galleries

The main aim in the design for the New Museum of Art in Warsaw was to try and re-think our conception of what a museum should be in the 21st Century. Not a self-orientated institution but a public cultural service in its broad contemporary sense.

Client:
Office of the Chief City Architect, Capital City of Warsaw

Area:
35.000m²

Competition Design:
2006-2007

Collaborators:
Matteo Arnone
Pedro Levi Bismark
Marco Ciric
Gabriele Corbetta
Audrey Decaillon
Paolo Fontana
Frederic Fourrichon
Henning Geipel
Falk Heuer
Aleksandra Kubos-Nowak
Isabelle Lébre
Michele Martinetti
Ido Segal
Tai Schomaker